Gå til indholdet

Futura+ IC Skydedør med Futura-look – Dobbeltrettet – Lavt bundtrin

Anvendelse
Skydedøre med lavt bundtrin anvendes primært som direkte udgang til terrasse, altan, altangang og fransk altan, hvor niveaufri og nem adgang samt maksimal åbning ønskes.

Funktion

Den dobbeltrettede skydedør består af to modsatgående dørrammer.

For at åbne døren drejes grebet helt opad, hvorved dørrammen frigøres fra indgreb med karmen, og rammen bevæger sig ca. 8 mm ud fra lukkeplan og kan derefter skydes forbi partiets faste dele.

Grebet på den anden skydende ramme kan ikke aktiveres før den først skydende ramme er åbnet. På topskinnen sidder et endestop, der sikrer at skydedørens skydende dele ikke skydes for langt til siden.

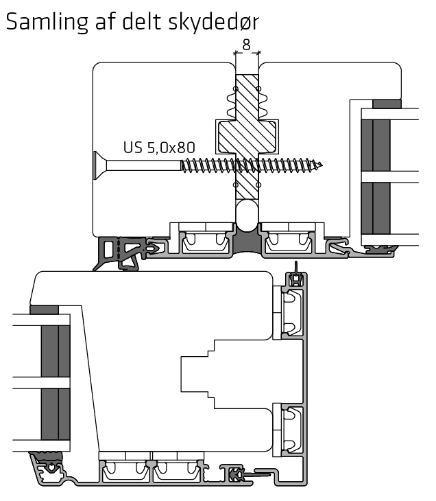
Døren leveres i tre separate elementer med to sidepartier og skal samles på pladsen.

  • Produktinformation:
  • Eref: -
  • Uw: UD: 2-lags = 1,18 W/m²K | 3-lags = 0,91 W/m²K
  • Rudedimensioner: 2-lags: 28 mm (4-20-4) | 3-lags: 48 mm (4-18-4-18-4)
  • Stilsprosser: -
  • Karm dimensioner: 50 x 149 mm / 175 mm
  • Montage- og Brugervejledning